| 型号 | 电压(V) | 额定功率(W) | 风量(m3/h) | 静压(Pa) | 噪音 d( B A) | 重量(Kg) | 包装尺寸(mm) |
| JSF-10/M1001 | 220 | 15 | 100 | 90 | 24 | 2.5 | 260x240x260 |
| JSF-18/M1801 | 220 | 19 | 180 | 110 | 26 | 1.5 | 260x240x260 |
| JSF-30/1 | 220 | 38 | 300 | 150 | 35 | 3.7 | 300x300x270 |
| JSF-37/M3701 | 220 | 41 | 370 | 150 | 35 | 3.7 | 300x300x270 |
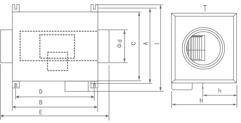
| 型号 | A | B | C | D | E | H | H | I | Φd |
| JSF-10/J1002 | 286 | 335 | 240 | 295 | 490 | 203 | 100 | 325 | 98 |
| JSF-18/J1802 | 286 | 334 | 240 | 298 | 490 | 203 | 100 | 325 | 98 |
| JSF-37(/D) | 290 | 334 | 240 | 298 | 520 | 242 | 125 | 325 | 142 |
| JSF-50(D) | 319 | 385 | 273 | 349 | 566 | 280 | 135 | 360 | 142 |
| JSF-77(/D) | 330 | 430 | 284 | 395 | 620 | 310 | 36 | 375 | 196 |
| 型号 |
电压 (V) |
额定功率(W) | 风量(m3/h) |
静压 (Pa) |
噪音 d( B A) | 重量(Kg) | 包装尺寸(mm) | |||
| 高 | 低 | 高 | 低 | 高 | 低 | |||||
| JSF-10/J1002 | 220 | 15 | - | 100 | - | 90 | 24 | - | 5.2 | 538x380x240 |
| JSF-18/J1802 | 220 | 22 | - | 180 | - | 110 | 26 | - | 5.2 | 538x380x240 |
| JSF-37 | 220 | 38 | 32 | 370 | 300 | 130 | 27 | 25 | 6.5 | 610x380x270 |
| JSF-50 | 220 | 74 | 50 | 500 | 400 | 185 | 29 | 26 | 9.3 | 670x420x315 |
| JSF-77 | 220 | 140 | 87 | 770 | 620 | 180 | 35 | 32 | 9.1 | 680x450x380 |
| JSF-37/D | 220 | 28 | 21 | 370 | 280 | 137 | 26 | 25 | 6.5 | 610x380x270 |
| JSF-50/D | 220 | 60 | 30 | 500 | 380 | 183 | 28 | 27 | 9.3 | 670x420x315 |
| JSF-77/D | 220 | 70 | 50 | 770 | 620 | 222 | 34 | 31 | 9.4 | 680x450x360 |
上一条:安丘静音型系列-通风机
下一条:安丘挂壁式新风净化器